Звоните! Бесплатный выезд и консультация в офисе или у вас на объекте! Образцы материалов всех производителей у нас в офисе! Теплогидравлические расчеты и смета! Мы предложим несколько пакетов материалы+работы "Под ключ" - Стандарт, Премиум, Эксклюзив или комбинацию из нескольких на ваш выбор.
У Вас будут работать только наши квалифицированные монтажники - никаких сторонних лиц! Гарантия на Монтаж от 5 до 15 лет!
Закажите полный проект отопления - это позволит сэкономить вам значительную сумму еще до начала покупки оборудования и монтажа! Привозите или отправляйте свой проект отопления - бесплатно проведем аудит и укажем ошибки или подтвердим его правильность!
Отзывы наших клиентов
Преимущества нашей компании
Наша команда

Наш офис
Наши объекты

Жилой дом в Зеленой Гавани по ул. Кленовая Аллея 2 этажа, площадь 371м2
Задача
Демонтировать все сантехсистемы от застройщика. Сделать систему отопления и водоснабжения согласно дизайн проекту.
Установить множество дополнительных систем, таких как Антилед, накопители воды на случай отключения, резервный электрокотел на случай отключения газа, незамерзающие краны и так далее.
Концепция газовая котельная с погодозависимым управлением, отопление теплыми полами, дизайн-радиаторами, и внутрипольными конвекторами под всеми окнами в пол, подогрев под всей тротуарной плиткой — дорожки и парковка системой Антилед.
В чем сложность проекта
В полу кроме сантехсистем были запроектированы системы кондиционирования и трубопроводы встроенного пылесоса. Все это необходимо было учесть, спроектировать укладку трубопроводов таким образом, чтобы не было пересечений с остальными коммуникациями, так как “пирог” пола ограничен. Мы благополучно увязали все системы, спроектировали и смонтировали разводку отопления таким образом, что все подключено и работает со смартфона через систему Умный дом.
Почему заказчик выбрал нас
По рекомендации архитектора, занимающегося разработкой проекта его дома и контролирующего все работы, а также за способность показать способы экономии без ущерба качеству и возможности повторного использования оборудования, которое досталось от застройщика. Также за учет всех пожеланий и проектирования и реализации дополнительных нестандартных сантехнических решений.
Выполненные работы
Демонтаж существующих сантехсистем
Демонтаж стяжки и перегородок
Проектирование всех сантехсистем
Закупка и хранение материалов до начала монтажа, доставка на объект во время выполнения работ
Монтаж внутренней канализации
Монтаж холодного и горячего водоснабжения
Монтаж радиаторного отопления
Монтаж теплых полов
Монтаж котельной
Монтаж водомерного узла
Монтаж системы Антилед
Монтаж резервного электрокотла и накопителей воды
Установка сантехнической посуды
Пуско-наладочные работы
Заказчик получил инструкцию, схемы прокладки труб и фотоотчет.
Примененные материалы
1.Оборудование:
-Газовый настенный котел Viessmann 30 кВт с встроенной погодозависимой автоматикой и водонагреватель Huch 300л,
-насосные группы Meibes,
-внутрипольные конвекторы LeBrama
-трубчатые дизайн-радиаторы Zehnder Charleston
2.В качестве трубопроводов систем подпольного, радиаторного отопления и водоснабжения использованы трубы и фитинги из сшитого полиэтилена системы MVI. Срок службы 100 лет.
3.Обвязка котельной выполнена нержавеющими трубами под пресс системы MVI.
Сроки
Проект — 30 дней; монтаж отопления, водоснабжения и канализации -15 дней; монтаж котельной — 3 дня; монтаж системы Антилед — 4 дня; установка сантехпосуды – 3 дня.
Гарантия и обслуживание
Сдача объекта: 2023 г
Вызовы по гарантии: 1 — Вышел из строя насос системы Антилед — был оперативно заменен по гарантии.
Сервисное обслуживание: да
Отзыв
Игорь Богуцкий
Пару лет назад я купил дом у застройщика в Зеленой Гавани. Затем я сделал полный дизайн-проект и начал искать строителей для реализации своего проекта. По рекомендации архитектора я обратился в компанию СТХ САНТЕХНИКА для выполнения комплекса под ключ всего что касалось сантехники. Поскольку застройщик изначально предусмотрел в доме только радиаторное отопление, а мне хотелось сделать практически везде теплые полы я планировал сделать полностью новую систему. Когда приехал проконсультироваться в офис, ребята объяснили мне, что все менять не обязательно, такие дорогостоящие вещи как котел, бойлер, насосы, полиэтиленовые труб и прочее разное оборудование можно оставить, за что я им и благодарен, ведь это позволило сэкономить мне приличные деньги. Так же у меня было несколько неформатных пожеланий, таких как система Антилед под всей тротуарной плиткой вокруг дома, резервный электрокотел, накопители воды и другие нестандартные вещи. Все это инженеры данной компании рассчитали, скомплектовали и две бригады смонтировали. Всем пользуюсь, очень доволен – удачи вам парни и процветания!

Жилой дом в Августово 1 этаж, площадь 177 м2
Задача
Спроектировать и смонтировать отопление, водоснабжение, канализацию и котельную в доме таким образом, чтобы в будущем без переделок и изменений можно было установить и подключить тепловой насос в топочную. Обязательно зональное регулирование температуры в каждой комнате и удаленное управление со смартфона. Котел, водонагреватель и все оборудование принципиально немецкого производителя.
Трубная система производства Германия, все соединения под натяжное кольцо без единой резинки. Вся скрытая сантехника — инсталляции, щелевой трап, скрытые смесители — все производства Германия.
Концепция электрокотел и водонагреватель, место под тепловой насос, отопление теплыми полами и стальными панельными радиаторами.
В чем сложность проекта
Практически все материалы по желанию Заказчика должны быть производства Германия. А как известно все производится на совершенно разных заводах. Трубы на одном, котел на другом, насосы на третьем и так далее. Пришлось скрупулезно подбирать поставщиков причем нескольких вариантов, чтобы несмотря на жесткие рамки был хоть какой то выбор. Так же пришлось проверять реальность того, что все материалы действительно немецкие, ведь давно уже известно что такие немецкие гиганты как BOSCH например давно производит Китай, а не Германия.
Почему заказчик выбрал нас
Несмотря на удаленность объекта, мы нашли время его посетить и обследовать, а также выслушать все пожелания Заказчика. Затем, согласовывая производителей материалов и тип оборудования, мы дали возможность выбрать из разных ценовых категорий и производителей. При этом мы не настаивали на каком то определенном — просто выложили образцы всех, чтобы Заказчик мог спокойно пощупать и выбрать что ему ближе к сердцу.
Выполненные работы
Проектирование всех сантехсистем
Закупка и хранение материалов до начала монтажа, доставка на объект во время выполнения работ
Монтаж внутренней канализации
Монтаж холодного и горячего водоснабжения
Монтаж радиаторного отопления
Монтаж теплых полов
Монтаж котельной
Монтаж водомерного узла
Монтаж скрытой сантехпосуды — инсталляции, трап встроенный в пол, смесители
Установка сантехнической посуды
Пуско-наладочные работы
Заказчик получил инструкцию, схемы прокладки труб и фотоотчет.
Примененные материалы
1.Оборудование:
-Электрокотел Vaillant и водонагреватель Vaillant 200л
,
-стальные панельные-радиаторы Kermi
2.В качестве трубопроводов систем подпольного, радиаторного отопления и водоснабжения использованы трубы и фитинги из сшитого полиэтилена системы TeCe. Срок службы 100 лет.
3.Обвязка котельной выполнена оцинкованными и нержавеющими трубами под пресс системы Viega.
Сроки
Проект — 10 дней; монтаж отопления, водоснабжения и канализации — 7 дней; монтаж котельной — 3 дня; установка сантехпосуды – 3 дня.
Гарантия и обслуживание
Сдача объекта: 2020 г
Вызовы по гарантии: 0
Сервисное обслуживание: да
Отзыв
Ivan Fetsisau
спасибо за хорошую работу! Внимательное отношение к моим требованиям и нюансам моего небольшого дома. Приятно удивило, по сравнению с другими компаниями, что предложили на выбор несколько вариантов. выехали на объект для обследования. И главное — не навязывали своё мнение. Респект и удачи в будущем!

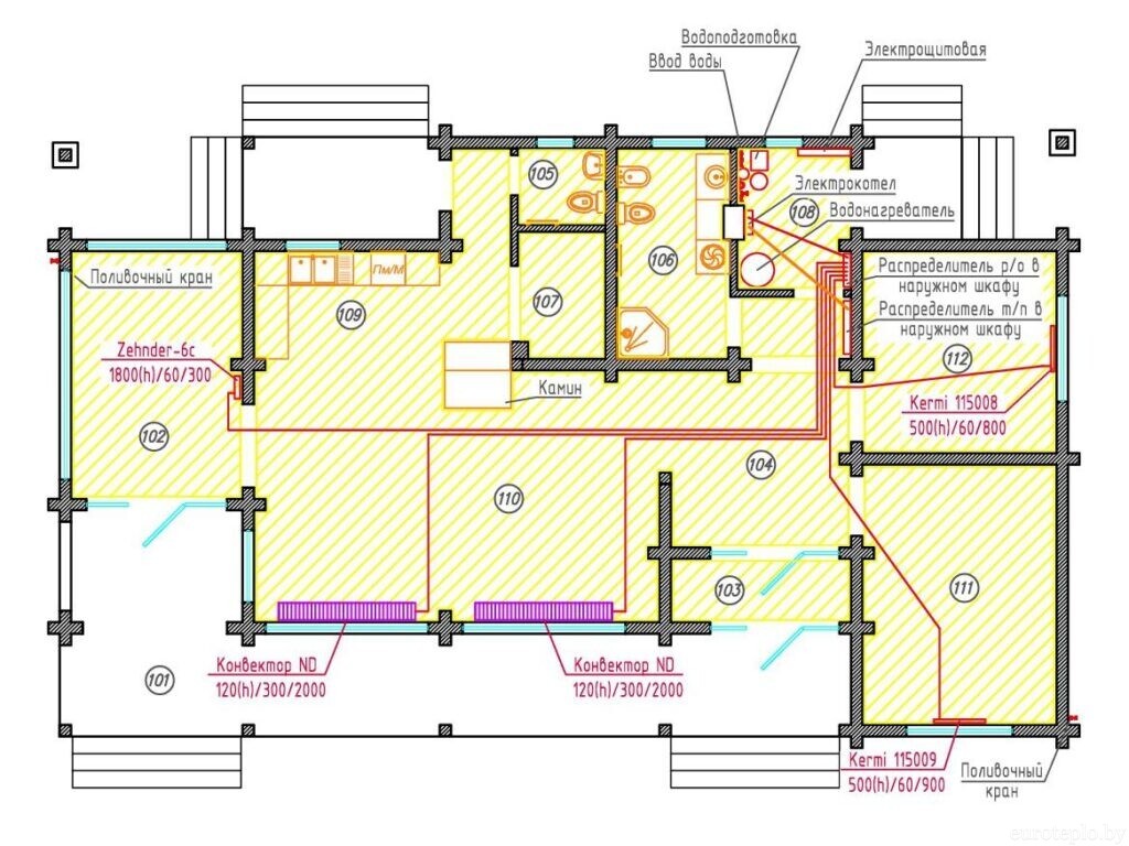
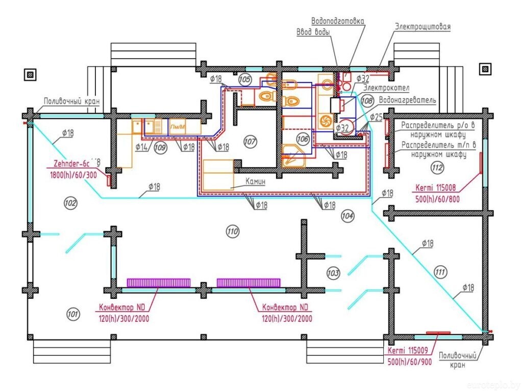
Жилой дом в Хатежино 2 этажа, площадь 236 м2
Задача
Заказчик честно признался, что обратился во множество компаний для реализации отопления и водоснабжения в своем доме. Нужно было сделать предложение грамотнее, выгоднее и надежнее, что мы и сделали. Применили только необходимое оборудование точно рассчитанное количество материалов.
Концепция газовая котельная, отопление теплыми полами на первом этаже, стальные панельные радиаторы на втором этаже, и внутрипольные конвекторы под всеми окнами в пол.
В чем сложность проекта
Все оборудование должно было быть надежным и качественным, при этом общая стоимость не должна превышать конкурентные предложения. Система отопления состоит из нескольких систем — теплые полы, радиаторы и внутрипольные конвекторы — все это нужно было грамотно подобрать по мощности и увязать между собой, чтобы был равномерный нагрев и одинаковая температура во всех помещениях. Конвекторы должны выдавать достаточно тепла и при этом не выходить из оконных проемов, чтобы было комфортно проходить рядом с окном не наступая на них.
Почему заказчик выбрал нас
Когда Заказчик показал схемы отопления предложенные другими «специалистами», на этапе консультации мы указали на лишние узлы, что уже существенно экономило средства. После этого мы разработали свою схему отопления (на основе расчета теплопотерь), суммы затрат снизились еще существеннее.
В итоге, весь комплекс работ Заказчик отдал нам.
Выполненные работы
Проектирование всех сантехсистем
Закупка и хранение материалов до начала монтажа, доставка на объект во время выполнения работ
Монтаж внутренней канализации
Монтаж холодного и горячего водоснабжения
Монтаж радиаторного отопления
Монтаж теплых полов
Монтаж котельной
Монтаж водомерного узла
Установка сантехнической посуды
Пуско-наладочные работы
Заказчик получил инструкцию, схемы прокладки труб и фотоотчет.
Примененные материалы
1.Оборудование:
-Котел настенный газовый конденсационный одноконтурный со встроенной модуляцией DeDietrich PMC-S24 и водонагреватель Meibes 200л,
-стальные панельные-радиаторы Kermi и внутрипольные конвекторы ND
2.В качестве трубопроводов систем подпольного, радиаторного отопления и водоснабжения использованы трубы и фитинги из сшитого полиэтилена системы KAN-Therm. Срок службы 100 лет.
3.Обвязка котельной выполнена медными трубами под пресс системы Sanco.
Сроки
Проект — 10 дней; монтаж отопления, водоснабжения и канализации — 10 дней; монтаж котельной — 3 дня; установка сантехпосуды – 3 дня.
Гарантия и обслуживание
Сдача объекта: 2020 г
Вызовы по гарантии: 0
Сервисное обслуживание: да
Отзыв
Andrei
Ребята большие профессионалы в своем деле, за что им большое спасибо.
Обратился к ним спустя несколько месяцев переговоров с разными подрядчиками — необходимо было рассчитать и выполнить полную схему отопления-водоснабжения-канализации в двухэтажном доме с мансардой. От всех остальных предложений СТХ сразу выгодно отличился инженерным (а не сугубо коммерческим) подходом и высокой прозрачностью во всем, от расчетов до материалов и работ.
Когда я показал схемы отопления предложенные другими «специалистами», мне даже на этапе консультации указали на лишние узлы, что уже существенно экономило средства. После того, как СТХ разработали свою схему отопления (на основе расчета теплопотерь), суммы затрат снизились еще существеннее.
В итоге, весь комплекс работ решили отдать им. Были выполнены следующие работы:
— канализация и водоснабжение по всему дому (2 санузла, кухня, котельная)
— теплые водяные полы на первом этаже и частично на втором (в нежилых помещениях)
— радиаторное отопление на всех этажах
— разводка и монтаж котельной
Все работы были выполнены под ключ за месяц.
Искренне рекомендую СТХ как высококлассных профи своего дела и просто хороших ребят, которые всегда проконсультируют и подберут ту схему, которая будет эффективней для клиента, даже если они сами не так много заработают.
Спасибо!

Жилой дом в СТ Озерный Берег 1 этаж, площадь 96 м2
Задача
Сделать все, что связано с сантехникой в дачном доме, одновременно являющимся домом, баней, сауной и хамамом. Сделать отопление таким образом, чтобы можно было удаленно контролировать, управлять и менять температуру в доме.
Концепция котельная, отопление теплыми полами, а если их недостаточно установить дополнительно радиаторы.
В чем сложность проекта
Дом деревянный, потому все системы отопления и водоснабжения необходимо было сделать так, чтобы не повредить натуральное дерево. Так же нужно было организовать удаленное управление системой отопления и полный контроль со смартфона.
Почему заказчик выбрал нас
У Заказчицы были сжатые сроки — за несколько месяцев она построила дом в садовом товариществе, и поскольку время планировала проводить там только с середины весны до середины осени, ей очень хотелось не пропустить и сделать все строительные и отделочные работы к сезону. Мы пообещали, что свою часть выполним за 15 дней, прописали их в договоре как гарантию своих слов.
Выполненные работы
Проектирование всех сантехсистем
Закупка и хранение материалов до начала монтажа, доставка на объект во время выполнения работ
Монтаж внутренней канализации
Монтаж холодного и горячего водоснабжения
Монтаж радиаторного отопления
Монтаж теплых полов
Монтаж котельной
Монтаж водомерного узла
Монтаж обогреваемых элементов в хамаме
Установка сантехнической посуды
Пуско-наладочные работы
Заказчик получил инструкцию, схемы прокладки труб и фотоотчет.
Примененные материалы
1.Оборудование:
-Котел настенный газовый конденсационный одноконтурный со встроенной модуляцией DeDietrich PMC-S24 и водонагреватель Meibes 200л,
-стальные панельные-радиаторы Kermi.
2.В качестве трубопроводов систем подпольного, радиаторного отопления и водоснабжения использованы трубы и фитинги из сшитого полиэтилена системы KAN-Therm. Срок службы 100 лет.
3.Обвязка котельной выполнена медными трубами под пресс системы Viega.
Сроки
Проект — 5 дней; монтаж отопления, водоснабжения и канализации — 5 дней; монтаж котельной — 3 дня; установка сантехпосуды – 2 дня.
Гарантия и обслуживание
Сдача объекта: 2022 г
Вызовы по гарантии: 0
Сервисное обслуживание: да
Отзыв
Елена Хомич
Заказывали в «СТХ» монтаж отопления в нашем доме, площадь 96 кв.м. . Они же сделали нам проект отопления. И привезли все материалы. Всё было сделано в короткий срок, который мы сразу прописали в договоре — всего за 15 дней всё было готово. Могу смело советовать «СТХ» всем, кому надо сделать отопление быстро и по минимальной цене. Спасибо вам, ребята!

Жилой дом в Раубичах 3 этажа, площадь 1675 м2
Задача
Скомплектовать и смонтировать отопление, водоснабжение, канализацию и котельную в доме. Обязательно зональное регулирование температуры в каждой комнате и удаленное управление со смартфона. Трубная система производства Германия, все соединения под натяжное кольцо без единой резинки. Вся скрытая сантехника — инсталляции, щелевой трап, скрытые смесители — все производства Германия.
Концепция газовый котел и водонагреватель, отопление теплыми полами, радиаторами и внутрипольными конвекторами.
В чем сложность проекта
На руках у Заказчика был полный строительный проект, включая разделы отопления, водоснабжения, канализации и котельной. По нему мы сделали смету с конкретной стоимостью работ и материалов.
Но итоговая сумма была слишком высока для общего бюджета строительства, и заказчик попросил нас удешевить общую стоимость хотя бы на 25% применив более дешевые материалы – заменить полиэтиленовые трубы на металлопластиковые в системах отопления и на полипропиленовые в системе водоснабжения, так как они в 2 раза дешевле. Биметаллические радиаторы заменить на стальные, они как раз были на 25% дешевле.
Конденсационные котлы в каскаде заменить на простые газовые и так же сэкономить 20% на стоимости.
С некоторыми предложениями мы были согласны – действительно все радиаторы по дизайн проекту либо за шторами либо закрыты декоративной зашивкой и их можно заменить с биметаллических на стальные панельные с той же гарантией 10 лет и сроком службы 50 лет.
Но менять трубы с надежных полиэтиленовых под натяжное кольцо, на металлопласт, где в каждом фитинге 6 резинок и уж тем более на полипропилен со сроком службы в разы меньше мы принципиально отказывались, чтобы потом не испортить себе репутацию, когда трубная система спустя 10-15 лет начнет капать, течь, лопаться, расслаиваться и так далее.
В то же время наш инженер обратил внимание, что проект типовой и точные расчеты в нем вряд ли производились с привлечением отдельных проектировщиков по системам отопления. Весь строительный проект разработал один архитектор с общестроительным уклоном, не вдаваясь в узкие моменты. Это было видно по удивительно огромных теплопотерях указанных в проекте весьма теплого дома с большим слоем утепления и маленьким шагом укладки труб теплого пола во всех помещения – в основном 10-15см между трубами.
Почему заказчик выбрал нас
В итоге мы предложили заказчику сделать индивидуальный проект отопления и водоснабжения, и поскольку его стоимость была не маленькой 3350$ по курсу НБРБ на момент оплаты мы гарантировали экономию минимум 25% без ущерба качеству материалов и замен качественных полиэтиленовых труб на полипропилен или металлопласт, что готовы были прописать в договоре на проектирование, с условием что если нам это не удаться мы возвращаем полную стоимость проектирования.
Заказчик согласился – и в результате по готовности проекта выяснилось, что реальные теплопотери дома гораздо меньше, достаточно одного котла, а не двух, а шаг укладки теплых полов получился в среднем 25-30см между трубами и лишь в единичных помещениях 10-15см. В итоге была составлена новая смета и экономия составила 51.300 евро в сумме на материалах и работах, так как стоимость и объем работ также автоматически уменьшились – меньше количества труб и котлов пришлось монтировать. Таким образом удалось сэкономить около 28% от первоначальной сметы.
Выполненные работы
Проектирование всех сантехсистем
Закупка и хранение материалов до начала монтажа, доставка на объект во время выполнения работ
Монтаж внутренней канализации
Монтаж холодного и горячего водоснабжения
Монтаж радиаторного отопления
Монтаж теплых полов
Монтаж котельной
Монтаж водомерного узла
Монтаж скрытой сантехпосуды — инсталляции, трап встроенный в пол, смесители
Установка сантехнической посуды
Пуско-наладочные работы
Заказчик получил инструкцию, схемы прокладки труб и фотоотчет.
Примененные материалы
1.Оборудование:
-Газовый котел De Dietrich и водонагреватель Meibes, резервный электрокотел
-стальные панельные-радиаторы Kermi
-внутрипольные конвекторы ND
2.В качестве трубопроводов систем подпольного, радиаторного отопления и водоснабжения использованы трубы и фитинги из сшитого полиэтилена системы TeCe. Срок службы 100 лет.
3.Обвязка котельной выполнена оцинкованными и нержавеющими трубами под пресс системы KAN-therm.
Сроки
Проект — 45 дней; монтаж отопления, водоснабжения и канализации — 60 дней; монтаж котельной — 10 дней; установка сантехпосуды – 15 дней.
Гарантия и обслуживание
Сдача объекта: 2019 г
Вызовы по гарантии: 0
Сервисное обслуживание: да

Жилой дом в Колодищах 3 этажа, площадь 334 м2
Задача
Сделать систему отопления, которая будет работать от двух котлов — газового и электрического.
Трубы только сшитый полиэтилен, под натяжное кольцо. Разводка труб только от гребенок, чтобы каждый радиатор, каждый контур теплого пола перекрывался независимо.
Концепция котельная газовый и электрокотел в паре, отопление теплыми полами и стальными панельными радиаторами.
В чем сложность проекта
Дом трехэтажный — нужно было увязать всю гидравлику, правильно рассчитать диаметры труб в системах отопления, чтобы на всех этажах, в каждой комнате, было одинаково тепло. Также Заказчик попросил, чтобы система отопления работала и от газа и от электричества независимо друг от друга, в случае проблем с одним источником тепла, продолжает работать второй.
Почему заказчик выбрал нас
“Цены примерно как у всех, но удивил серьезный подход к работе”. Мы согласовали все дополнительные вопросы, про которые другие даже не спрашивали (поливочные краны, отопление в парилке в бане, трап в гараже, установку инсталляций, питьевого фильтра, системы водоподготовки и так далее). В итоге в доме продумана каждая мелочь, связанная с сантехникой.
Выполненные работы
Проектирование всех сантехсистем
Закупка и хранение материалов до начала монтажа, доставка на объект во время выполнения работ
Монтаж внутренней канализации
Монтаж холодного и горячего водоснабжения
Монтаж радиаторного отопления
Монтаж теплых полов
Монтаж котельной
Монтаж водомерного узла
Монтаж скрытой сантехпосуды — инсталляции, трапы встроенные в пол, смесители
Установка сантехнической посуды
Пуско-наладочные работы
Заказчик получил инструкцию, схемы прокладки труб и фотоотчет.
Примененные материалы
1.Оборудование:
-Котел настенный газовый конденсационный одноконтурный со встроенной модуляцией DeDietrich PMC-S24, электрокотел Protherm и водонагреватель Meibes 300л,
-стальные панельные-радиаторы Kermi
2.В качестве трубопроводов систем подпольного, радиаторного отопления и водоснабжения использованы трубы и фитинги из сшитого полиэтилена системы KAN-Therm. Срок службы 100 лет.
3.Обвязка котельной выполнена оцинкованными и нержавеющими трубами под пресс системы KAN-Therm.
Сроки
Проект — 10 дней; монтаж отопления, водоснабжения и канализации — 15 дней; монтаж котельной — 3 дня; установка сантехпосуды – 3 дня.
Гарантия и обслуживание
Сдача объекта: 2023 г
Вызовы по гарантии: 0
Сервисное обслуживание: да
Отзыв
Platon Gulik
Обратились в компанию СТХ по рекомендации соседей в Колодищах. В итоге тоже остались всем довольны, цены примерно как у всех, но удивил серьезный подход к работе. Согласовывали с нами все мелкие вопросы, про которые другие даже не спрашивали (про поливочные краны, отопление в парилке в бане, трап в гараже и тому подобное). Поэтому в итоге мы получили продуманные решения и остались более чем довольны. Спасибо ребятам, и всем могу их рекомендовать!

Жилой дом в д. Молоди 1 этаж, площадь 149 м2
Задача
Спроектировать и смонтировать отопление, водоснабжение, канализацию и котельную в деревянном доме. Обязательно зональное регулирование температуры в каждой комнате и удаленное управление со смартфона.
Концепция котельная, отопление теплыми полами, где их не хватает добавить радиаторы, а для полного комфорта установить конвекторы и вертикальные трубчатые радиаторы у панорамных окон.
В чем сложность проекта
Дом деревянный, потому все системы отопления и водоснабжения необходимо было сделать так, чтобы не повредить натуральное дерево. Так же нужно было организовать удаленное управление системой отопления и полный контроль со смартфона. Всю сантехпосуду устанавливали прямо на деревянные стены, необходимо было продумать расположение и дизайн сантехпосуды таким образом, чтобы в итоге все сочеталось наилучшим образом.
Почему заказчик выбрал нас
Заказчица заказала у нас полный проект сантехсистем вместе с другом из другого населенного пункта Бузуны с таким же деревянным домом только двухэтажным. Так получилось, что сначала мы смонтировали его дом “Под ключ” и она, увидев как все здорово получилась, послушав восторженный его отзыв, тут же заказала весь комплекс у нас, что мы и выполнили с удовольствием.
Выполненные работы
Проектирование всех сантехсистем
Закупка и хранение материалов до начала монтажа, доставка на объект во время выполнения работ
Монтаж внутренней канализации
Монтаж холодного и горячего водоснабжения
Монтаж радиаторного отопления
Монтаж теплых полов
Монтаж котельной
Монтаж водомерного узла
Установка сантехнической посуды
Пуско-наладочные работы
Заказчик получил инструкцию, схемы прокладки труб и фотоотчет.
Примененные материалы
1.Оборудование:
-Электрокотел Kospel и водонагреватель Kospel 200л
,
-стальные панельные-радиаторы Kermi и трубчатые дизайн-радиаторы Zehnder Charleston
—внутрипольные конвекторы ND
2.В качестве трубопроводов систем подпольного, радиаторного отопления и водоснабжения использованы трубы и фитинги из сшитого полиэтилена системы KAN-Therm. Срок службы 100 лет.
3.Обвязка котельной выполнена оцинкованными и нержавеющими трубами под пресс системы KAN-Therm.
Сроки
Проект — 10 дней; монтаж отопления, водоснабжения и канализации — 7 дней; монтаж котельной — 3 дня; установка сантехпосуды – 3 дня.
Гарантия и обслуживание
Сдача объекта: 2022 г
Вызовы по гарантии: 0
Сервисное обслуживание: да
Отзыв
Светлана Акопян
Офигенные ребята! Я познакомилась с ними лет 2 назад, когда мы с мужем заказали у них отопление для нашего нового дома. Они разработали проект, закупили все необходимые материалы и провели работы оперативно и качественно. После завершения работ они даже убрали весь мусор, что было приятным сюрпризом. С тех пор отопление работает безупречно, и до сих пор не было замечено никаких проблем)

Жилой дом в г. Минске по ул. Ратомской 2 этажа, площадь 297 м2
Задача
Сделать систему отопления, которая будет полностью соответствовать дизайн проекту.
Смонтировать систему водоснабжения и канализации под четко прорисованную планировку санузлов. Котел со встроенной погодозависимой автоматикой.
Трубы и фитинги известного бренда с большим сроком службы, страховкой и гарантией.
Концепция газовая котельная с погодозависимым управлением, отопление теплыми полами, дизайн-радиаторами, и внутрипольными конвекторами под всеми окнами в пол.
В чем сложность проекта
Большинство помещений в доме имеет паркет в качестве напольного покрытия, потому во многих комнатах пришлось отказаться от теплых полов и рассчитать точную мощность и минимально возможные размеры конвекторов, так как они в любом случае получались больше оконных проемов. В помещениях где есть и теплый пол и конвектор таких нюансов не возникло — конвекторы строго в проемах.
Также в доме выполнена приточно-вытяжная вентиляция, для сохранения эстетического вида стен подача воздуха спроектирована через внутрипольные конвекторы, благодаря чему на стенах нет ни одной вентиляционной решетки.
Почему заказчик выбрал нас
Дом был куплен недостроенным, и по просьбе Заказчика, было повторно использовано все оборудование и трубопроводы, годные для монтажа. Также ни одна компания не взялась за такой сложный проект — увязать вентиляцию через конвекторы с системой отопления, сделать точный индивидуальный заказ внутрипольных конвекторов на заводе изготовителе с полным сопровождением всех этапов и гарантией 10 лет как на материалы так и на работы.
Выполненные работы
Проектирование всех сантехсистем
Закупка и хранение материалов до начала монтажа, доставка на объект во время выполнения работ
Монтаж внутренней канализации
Монтаж холодного и горячего водоснабжения
Монтаж радиаторного отопления
Монтаж внутрипольных конвекторов со встроенным блоком подачи вентиляции
Монтаж теплых полов
Монтаж котельной
Монтаж водомерного узла
Подключение системы вентиляции к отоплению
Установка сантехнической посуды
Пуско-наладочные работы
Заказчик получил инструкцию, схемы прокладки труб и фотоотчет.
Примененные материалы
1.Оборудование:
-Газовый настенный конденсационный котел De Dietrich АМС 25
Diematic EVOLUTION со встроенной погодозависимой автоматикой и водонагреватель Meibes 300л,
-насосные группы Meibes,
-внутрипольные конвекторы со встроенным блоком подачи вентиляции
IPM Klima
2.В качестве трубопроводов систем подпольного, радиаторного отопления и водоснабжения использованы трубы и фитинги из сшитого полиэтилена системы KAN-Therm. Срок службы 100 лет.
3.Обвязка котельной выполнена оцинкованными и нержавеющими трубами под пресс системы KAN-Therm..
Сроки
Проект — 30 дней; монтаж отопления, водоснабжения и канализации -15 дней; монтаж котельной — 3 дня; установка сантехпосуды – 4 дня.
Гарантия и обслуживание
Сдача объекта: 2024 г
Вызовы по гарантии: 0
Сервисное обслуживание: да
Отзыв
Kate Kate
После покупки дома всех строителей искала по отзывам, так как был опыт с непорядочными отделочниками при ремонте квартиры. Так в гугле попала на СТХ, все отзывы были положительные потому решила обратиться к ним. После встречи поняла, что правильно будет сначала сделать проект отопления, а затем уже по нему все покупать и реализовывать. Заказала сначала проект, а затем и весь комплекс работ по сантехнике. Сотрудники компании все рассчитали, заказали все материалы привезли и сделали. Все в оговоренные сроки, все качественно – результатом довольна. Затем по окончанию ремонта пригласила установить ванну, умывальники, краны, тумбочки всякие – в общем всю сантехнику. Все сделали, все работает, который год живу и наслаждаюсь. Вот приезжали на обслуживание все проверили провели кучу каких то процедур ) Спасибо за работу и за контроль – всем рекомендую!

Жилой дом в Королищевичах 3 этажа, площадь 264 м2
Задача
Заказчик купил недостроенный дом с кое как работающей системой отопления. Нужно было сделать систему отопления, которая будет полностью соответствовать дизайн проекту.
Смонтировать систему водоснабжения и канализации под четко прорисованную планировку санузлов. Использовать существующий газовый котел и радиаторы, но обвязку котельной из полипропилена заменить на металлические трубы.
Металопластиковые трубы и фитинги системы отопления так же заменить на полиэтиленовые известного бренда с большим сроком службы, страховкой и гарантией.
Концепция газовая котельная с погодозависимым управлением, отопление теплыми полами, существующими радиаторами.
В чем сложность проекта
Дом трехэтажный — нужно было увязать всю гидравлику, правильно рассчитать диаметры труб в системах отопления, чтобы на всех этажах, в каждой комнате, было одинаково тепло. По просьбе Заказчика использовать повторно все материалы годные для долгой эксплуатации, коими оказались котел, водонагреватель, радиаторы.
Почему заказчик выбрал нас
Смогли спроектировать все сантехсистемы с полным использованием его материалов, все выполнили в кратчайшие сроки. Дали продленную гарантию 10 лет.
Выполненные работы
Проектирование всех сантехсистем согласно дизайн-проекта
Закупка и хранение материалов до начала монтажа, доставка на объект во время выполнения работ
Монтаж внутренней канализации
Монтаж холодного и горячего водоснабжения
Монтаж радиаторного отопления
Монтаж теплых полов
Монтаж котельной
Монтаж водомерного узла
Монтаж скрытой сантехпосуды — инсталляции, трапы встроенные в пол, смесители
Установка сантехнической посуды
Пуско-наладочные работы
Заказчик получил инструкцию, схемы прокладки труб и фотоотчет.
Примененные материалы
1.Оборудование:
-Котел настенный газовый конденсационный одноконтурный Vaillant и водонагреватель 200л,
-биметаллические радиаторы
2.В качестве трубопроводов систем подпольного и радиаторного отопления использованы трубы и фитинги из сшитого полиэтилена системы ТеСе, а водоснабжения трубы и фитинги из сшитого полиэтилена системы KAN-therm. Срок службы 100 лет.
3.Обвязка котельной выполнена оцинкованными и нержавеющими трубами под пресс системы KAN-therm.
Сроки
Проект — 10 дней; монтаж отопления, водоснабжения и канализации — 16 дней; демонтаж-монтаж котельной — 4 дня; установка сантехпосуды – 4 дня.
Гарантия и обслуживание
Сдача объекта: 2018 г
Вызовы по гарантии: 0
Сервисное обслуживание: да

Жилой дом в г.Бресте 2 этажа, площадь 332 м2
Задача
Сделать систему отопления, которая будет не просто отоплением, а приносить эстетическое удовольствие.
Смонтировать систему водоснабжения и канализации. Котел и водонагреватель, и все оборудование принципиально немецкого производителя.
Трубы только полиэтилен, чтобы ни одной резинки и прокладки в соединениях труб. Все радиаторы дизайнерские и внутрипольные конвекторы для обдува “французских” окон в пол.
Концепция котельная, отопление теплыми полами на первом этаже, дизайн-радиаторы на втором, и внутрипольные конвекторы под всеми окнами в пол.
В чем сложность проекта
Все оборудование должно было быть производства Германия, при этом хотелось предложить несколько ценовых вариантов. Система отопления состоит из нескольких систем — теплые полы, дизайн-радиаторы и внутрипольные конвекторы — все это нужно было грамотно подобрать по мощности и увязать между собой, чтобы был равномерный нагрев и одинаковая температура во всех помещениях.
Почему заказчик выбрал нас
Все рассчитали, сделали смету в нескольких вариантах немецких производителей. В отличии от конкурентов точными расчетами доказали, применили и установили котел меньшей мощности, чем предлагали Заказчику конкуренты (видимо без расчетов исходя из большой площади дома), чем сэкономили Заказчику как минимум 1500 евро на котле.
Согласились работать в Бресте! Не все минские компании согласны работать на таких расстояниях.
Выполненные работы
Проектирование всех сантехсистем
Закупка и хранение материалов до начала монтажа, доставка на объект во время выполнения работ
Монтаж внутренней канализации
Монтаж холодного и горячего водоснабжения
Монтаж радиаторного отопления
Монтаж теплых полов
Монтаж котельной
Монтаж водомерного узла
Подключение системы вентиляции к отоплению
Установка сантехнической посуды
Пуско-наладочные работы
Заказчик получил инструкцию, схемы прокладки труб и фотоотчет.
Примененные материалы
1.Оборудование:
-Котел настенный газовый конденсационный одноконтурный со встроенной модуляцией ecoTEC Plus VU 466 и водонагреватель Vaillant 300л,
-насосные группы Meibes,
-дизайн-радиаторы Zehnder и внутрипольные конвекторы Kermi – все производства Германия.
2.В качестве трубопроводов систем подпольного, радиаторного отопления и водоснабжения использованы трубы и фитинги из сшитого полиэтилена системы ТеСе. Срок службы 100 лет.
3.Обвязка котельной выполнена нержавеющими трубами под пресс системы Viega.
Сроки
Проект — 15 дней; монтаж отопления, водоснабжения и канализации — 21 день; монтаж котельной — 3 дня; установка сантехпосуды – 5 дней.
Гарантия и обслуживание
Сдача объекта: 2019 г
Вызовы по гарантии: 0
Сервисное обслуживание: да
Отзыв
Alex S
Быстро и качественно сделали проект отопления дома. После также качественно реализовали этот проект. Очень доволен сроками выполнения и стоимостью выполненных работ. Буду рекомендовать друзьям.

Жилой дом в г.Смолевичи по ул.Е.Полоцкой
Выполненные работы:
- Проектирование разделов « отопление, водоснабжение, канализация, котельная»
- Монтаж систем отопления, водоснабжения, канализации и котельной в доме.
- Установка всей сантехнической посуды в санузлах и на кухне.

Жилой дом в п.Ясная Поляна
Выполненные работы:
- Проектирование разделов « отопление, водоснабжение, канализация, котельная»
- Монтаж систем отопления, водоснабжения, канализации и котельной в доме.
- Установка всей сантехнической посуды в санузлах и на кухне.

Жилой дом в д.Новая Родина
Выполненные работы:
- Проектирование разделов « отопление, водоснабжение, канализация, котельная»
- Монтаж систем отопления, водоснабжения, канализации и котельной электрокотел и водонагреватель косвенного нагрева в доме.
- Установка всей сантехнической посуды в санузлах и на кухне.

Жилой дом в д.Бузуны
Выполненные работы:
- Проектирование разделов « отопление, водоснабжение, канализация, котельная»
- Монтаж систем отопления, водоснабжения, канализации, газовой котельной в доме, а также резервного электрокотла и погодазависимой автоматики отопления.
- Установка всей сантехнической посуды в санузлах и на кухне.

Жилой дом в аг. Колодищи по ул. Короткевича
Выполненные работы:
- Проектирование разделов « отопление, водоснабжение, канализация, котельная»
- Монтаж систем отопления, водоснабжения, канализации и газового котла в доме, а также теплотрассы к бане и уличному бассейну.
- Установка всей сантехнической посуды в санузлах и на кухне.

Жилой дом в д.Боровляны по ул.Жемчужная
Выполненные работы:
- Проектирование разделов « отопление, водоснабжение, канализация, топочная»
- Монтаж систем отопления, водоснабжения, канализации и топочной в доме.
- Установка всей сантехнической посуды в санузлах.

Жилой дом в аг.Колодищи по ул.Богдановской
Выполненные работы:
- Проектирование разделов «отопление, водоснабжение, канализация и котельная»
- Монтаж систем отопления, водоснабжения, канализации и котельной в доме.
- Установка всей сантехнической посуды в санузлах.

Одноэтажный дом в Ратомке
Выполненные работы:
- Проектирование разделов « отопление, водоснабжение, канализация, котельная»
- Монтаж систем отопления, водоснабжения, канализации и газового котла в доме.
- Установка всей сантехнической посуды в санузле и на кухне.

Жилой дом в д. Боровляны по ул.Лесная
Выполненные работы:
- Проектирование разделов « отопление, водоснабжение, канализация, топочная»
- Монтаж систем отопления, водоснабжения, канализации и топочной в доме.
- Установка всей сантехнической посуды в санузлах.

Марьина Горка ул.Магистральная Сантехника Под Ключ в Индивидуальном жилом доме
Выполненные работы:
Проектирование всех сантехсистем
Закупка и хранение материалов до начала монтажа, доставка на объект во время выполнения работ
Монтаж внутренней канализации
Монтаж холодного и горячего водоснабжения
Монтаж радиаторного отопления
Монтаж теплых полов
Монтаж котельной
Монтаж водомерного узла
Примененные материалы:
Котельная — Газовый котел + Водонагреватель Италия — Гарантия 5 лет — Срок службы 20 лет
Трубы и фитинги котельной — полипропилен — Гарантия 5 лет — Срок службы 20 лет
Радиаторы стальные панельные — Гарантия 10 лет — Срок службы 50 лет
Радиаторное отопление — трубы и фитинги — сшитый полиэтилен повышенной прочности — Гарантия 10 лет — Срок службы 100 лет
Теплые полы — трубы и фитинги — сшитый полиэтилен прочности — Гарантия 5 лет — Срок службы 50 лет
Водоснабжение — трубы и фитинги- сшитый полиэтилен прочности — Гарантия 5 лет — Срок службы 50 лет
Водомерный узел сложный с выходами для подключения водоподготовки — Гарантия 10 лет — Срок службы 20 лет
Канализация — трубопроводы и фитинги ПВХ — Гарантия 5 лет — Срок службы 50 лет

Щомыслица ул.Садовая Сантехника Под Ключ в Индивидуальном жилом доме
Выполненные работы:
Проектирование всех сантехсистем
Закупка и хранение материалов до начала монтажа, доставка на объект во время выполнения работ
Монтаж внутренней канализации
Монтаж холодного и горячего водоснабжения
Монтаж радиаторного отопления
Монтаж теплых полов
Монтаж котельной
Монтаж водомерного узла
Установка сантехнической посуды
Примененные материалы:
Котельная — Газовый котел + Водонагреватель Италия — Гарантия 5 лет — Срок службы 20 лет
Трубы и фитинги котельной — медные под Press — Гарантия 10 лет — Срок службы 50 лет
Радиаторы стальные панельные — Гарантия 10 лет — Срок службы 50 лет
Радиаторное отопление — трубы и фитинги — сшитый полиэтилен повышенной прочности — Гарантия 10 лет — Срок службы 100 лет
Теплые полы — трубы и фитинги — сшитый полиэтилен повышенной прочности — Гарантия 10 лет — Срок службы 100 лет
Водоснабжение — трубы и фитинги- сшитый полиэтилен повышенной прочности — Гарантия 10 лет — Срок службы 100 лет
Водомерный узел сложный с выходами для подключения водоподготовки — Гарантия 10 лет — Срок службы 20 лет
Канализация — трубопроводы и фитинги ПВХ — Гарантия 10 лет — Срок службы 100 лет

Квартира с индивидуальным отоплением в г.Минске по ул.Шемеша
Выполненные работы:
- Проектирование разделов « отопление, водоснабжение, канализация, топочная»
- Монтаж систем отопления, водоснабжения, канализации и топочной в квартире.
- Установка всей сантехнической посуды в санузлах.

Жилой дом в Тарасово по ул.Красивая
Выполненные работы:
- Проектирование разделов «гелиоустановки, отопление, водоснабжение, канализация, топочная»
- Монтаж систем солнечных коллекторов, отопления, водоснабжения, канализации и топочной в доме.
- Установка всей сантехнической посуды в санузлах.

СТ Вишня Отопление Под Ключ в Индивидуальном жилом доме
Выполненные работы:
Проектирование отопления и котельной
Монтаж радиаторного отопления
Монтаж котельной
Примененные материалы:
Котельная — Электрокотел Польша — Гарантия 5 лет — Срок службы 20 лет
Трубы и фитинги котельной — оцинкованная сталь под Press — Гарантия 10 лет — Срок службы 50 лет
Радиаторы стальные панельные — Гарантия 10 лет — Срок службы 50 лет
Радиаторное отопление — оцинкованная сталь под Press — Гарантия 10 лет — Срок службы 50 лет

Смолевичи ул.Ивана Мележа Сантехника Под Ключ в Индивидуальном жилом доме
Выполненные работы:
Проектирование всех сантехсистем
Закупка и хранение материалов до начала монтажа, доставка на объект во время выполнения работ
Монтаж внутренней канализации
Монтаж холодного и горячего водоснабжения
Монтаж радиаторного отопления
Монтаж теплых полов
Монтаж котельной
Монтаж водомерного узла
Установка сантехнической посуды
Примененные материалы:
Котельная — Конденсационный газовый котел (экономия газа 30%) + Водонагреватель Франция — Гарантия 5 лет — Срок службы 20 лет
Трубы и фитинги котельной — медные под Press — Гарантия 10 лет — Срок службы 50 лет
Радиаторы стальные панельные — Гарантия 10 лет — Срок службы 50 лет
Радиаторное отопление — трубы и фитинги — сшитый полиэтилен повышенной прочности — Гарантия 10 лет — Срок службы 100 лет
Теплые полы — трубы и фитинги — сшитый полиэтилен повышенной прочности — Гарантия 10 лет — Срок службы 100 лет
Водоснабжение — трубы и фитинги- сшитый полиэтилен повышенной прочности — Гарантия 10 лет — Срок службы 100 лет
Водомерный узел сложный с выходами для подключения водоподготовки — Гарантия 10 лет — Срок службы 20 лет
Канализация — трубопроводы и фитинги ПВХ — Гарантия 10 лет — Срок службы 100 лет

Жилой дом в п.Пекалин по ул.Нагорная
Выполненные работы:
- Проектирование разделов «отопление, водоснабжение, канализация и котельная»
- Монтаж систем отопления, водоснабжения, канализации и котельной в доме.
- Установка всей сантехнической посуды в санузлах.

Жилой дом в г.Смолевичи по ул. Машерова
Выполненные работы:
- Проектирование разделов «отопление, водоснабжение, канализация и котельная»
- Монтаж систем отопления, водоснабжения, канализации и котельной в доме.
- Установка всей сантехнической посуды в санузлах.

Жилой дом в аг. Колодищи по ул. Окольной
Выполненные работы:
- Проектирование разделов «отопление, водоснабжение, канализация и котельная»
- Монтаж систем отопления, водоснабжения, канализации и котельной в доме.
- Установка всей сантехнической посуды в санузлах.

Жилой дом в п. Слобода
Выполненные работы:
- Проектирование разделов «отопление, водоснабжение, канализация и котельная»
- Монтаж систем отопления, водоснабжения, канализации и котельной в доме.
- Установка всей сантехнической посуды в санузлах.

Жилой дом в п. Нарочь
Выполненные работы:
- Проектирование разделов «отопление, водоснабжение, канализация и котельная»
- Монтаж систем отопления, водоснабжения, канализации и котельной в доме.
- Установка всей сантехнической посуды в санузлах.

Минск ул.Жасминовая Сантехника Под Ключ в Индивидуальном жилом доме
Выполненные работы:
Демонтаж существующих сантехсистем
Проектирование всех сантехсистем
Закупка и хранение материалов до начала монтажа, доставка на объект во время выполнения работ
Монтаж внутренней канализации
Монтаж холодного и горячего водоснабжения
Монтаж теплых стен
Монтаж радиаторного отопления
Монтаж теплых полов
Монтаж котельной
Монтаж водомерного узла
Установка сантехнической посуды
Примененные материалы:
Котельная — Конденсационный газовый котел (экономия газа 30%) + Водонагреватель Германия — Гарантия 5 лет — Срок службы 20 лет
Трубы и фитинги котельной — медные под Press — Гарантия 10 лет — Срок службы 50 лет
Радиаторы стальные панельные — Гарантия 10 лет — Срок службы 50 лет
Конвекторы встраиваемые в пол с рулонной решеткой — Гарантия 10 лет — Срок службы 50 лет
Теплые стены — трубы и фитинги — композитные максимальной прочности — Гарантия 10 лет — Срок службы 100 лет
Радиаторное отопление — трубы и фитинги — композитные максимальной прочности — Гарантия 10 лет — Срок службы 100 лет
Теплые полы — трубы и фитинги — композитные максимальной прочности — Гарантия 10 лет — Срок службы 100 лет
Водоснабжение — трубы и фитинги — композитные максимальной прочности — Гарантия 10 лет — Срок службы 100 лет
Водомерный узел сложный с выходами для подключения водоподготовки — Гарантия 10 лет — Срок службы 20 лет
Канализация — трубопроводы и фитинги ПВХ — Гарантия 10 лет — Срок службы 100 лет

Квартира в г.Минске по ул.Жасминовая
Выполненные работы:
- Проектирование разделов «отопление, водоснабжение, канализация»
- Монтаж систем отопления, водоснабжения, канализации и водомерных узлов в квартире.
- Установка всей сантехнической посуды в санузлах и системы химводоподготовки.

Жилой дом в г. Минске по ул. Домейко
Выполненные работы:
- Проектирование разделов «отопление, водоснабжение, канализация, топочная»
- Монтаж систем отопления, водоснабжения, канализации и топочной в квартире.
- Установка всей сантехнической посуды в санузлах.

Щомыслица по ул.Гагарина Сантехника Под Ключ в Индивидуальном жилом доме
Выполненные работы:
Проектирование всех сантехсистем
Закупка и хранение материалов до начала монтажа, доставка на объект во время выполнения работ
Монтаж внутренней канализации
Монтаж холодного и горячего водоснабжения
Монтаж радиаторного отопления
Монтаж теплых полов
Монтаж котельной
Монтаж водомерного узла
Установка сантехнической посуды
Примененные материалы:
Котельная — Газовый котел (Германия) — Гарантия 5 лет — Срок службы 20 лет
Трубы и фитинги котельной — медные под Press — Гарантия 10 лет — Срок службы 50 лет
Радиаторы стальные панельные — Гарантия 10 лет — Срок службы 50 лет
Радиаторное отопление — трубы и фитинги — сшитый полиэтилен повышенной прочности — Гарантия 10 лет — Срок службы 100 лет
Теплые полы — трубы и фитинги — сшитый полиэтилен повышенной прочности — Гарантия 10 лет — Срок службы 100 лет
Водоснабжение — трубы и фитинги- сшитый полиэтилен повышенной прочности — Гарантия 10 лет — Срок службы 100 лет
Водомерный узел сложный с выходами для подключения водоподготовки — Гарантия 10 лет — Срок службы 20 лет
Канализация — трубопроводы и фитинги ПВХ — Гарантия 10 лет — Срок службы 100 лет.

Ясная Поляна Сантехника Под Ключ в Индивидуальном жилом доме
Выполненные работы:
Проектирование всех сантехсистем
Закупка и хранение материалов до начала монтажа, доставка на объект во время выполнения работ
Монтаж внутренней канализации
Монтаж холодного и горячего водоснабжения
Монтаж радиаторного отопления
Монтаж теплых полов
Монтаж котельной
Монтаж водомерного узла
Установка сантехнической посуды
Примененные материалы:
Котельная — Конденсационный газовый котел (экономия газа 30%) + Водонагреватель Франция — Гарантия 5 лет — Срок службы 20 лет
Трубы и фитинги котельной — оцинкованные и нержавеющие стальные под Press — Гарантия 10 лет — Срок службы 50-100 лет
Радиаторы стальные панельные — Гарантия 10 лет — Срок службы 50 лет
Конвекторы встраиваемые в пол с рулонной решеткой — Гарантия 10 лет — Срок службы 50 лет
Радиаторное отопление — трубы и фитинги — сшитый полиэтилен повышенной прочности — Гарантия 10 лет — Срок службы 100 лет
Теплые полы — трубы и фитинги — сшитый полиэтилен повышенной прочности — Гарантия 10 лет — Срок службы 100 лет
Водоснабжение — трубы и фитинги- сшитый полиэтилен повышенной прочности — Гарантия 10 лет — Срок службы 100 лет
Водомерный узел сложный с выходами для подключения водоподготовки — Гарантия 10 лет — Срок службы 20 лет
Канализация — трубопроводы и фитинги ПВХ — Гарантия 10 лет — Срок службы 100 лет

Жилой дом в г. Минске по ул. Жасминовая
Выполненные работы:
- Проектирование разделов «отопление, водоснабжение, канализация, топочная»
- Монтаж систем отопления, водоснабжения, канализации и топочной в доме.
- Установка всей сантехнической посуды в санузлах.



































































































































































































































































































































































































































































































































































































































































































































































































